Réf : MC 2320
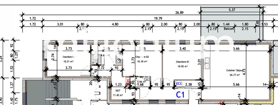
In einer neuen Residenz mit 12 Hauptwohnungen befindet sich dieses 4-Zimmer-Apartment im 2. und letzten Stock mit einer Wohnfläche von 80,02 m².
Die helle Wohnfläche von ca. 26 m² wird durch eine schöne Terrasse von ca. 15 m² ergänzt, die sich ideal für entspannte Momente im Freien eignet.
Das Schlafzimmer bietet drei Zimmer, ein Badezimmer und ein separates WC für optimalen Komfort.
Ausstattung und Ausstattungsmerkmale:
- Aluminium-Fensterrahmen
- 4-Punkt-Sicherheitsschloss
- Lüftung mit Wärmerückgewinnung (VMC)
- Individuelle Heizung
Ein abgeschlossener Stellplatz ist optional erhältlich.
Voraussichtliche Fertigstellung: März 2026 mit Bodenbelägen, Anstrichen und Küche ohne Elektrogeräte.
Reduzierte Notargebühren.
Kaufpreis: 217 000 EUR inkl. Maklerprovision zu Lasten des Verkäufers
Kontakt:
Mathilde Cassard
+41 79 262 70 61
+33 6 02 04 22 93
mathilde@milleniumproperties.ch
MILLENIUM PROPERTIES
Boulevard du Théâtre 5, 1204 Genève
https://www.milleniumproperties.ch
+41 22 342 44 12
