Découvrez "Les Villas de Bellerive", projet de deux villas individuelles de luxe ultra contemporaines & prestations haut de gamme
Les villas sont situées dans un quartier résidentiel prisé, à seulement 3 minutes à pied du lac et du centre de Collonge-Bellerive, elles offrent un cadre de vie exclusif.
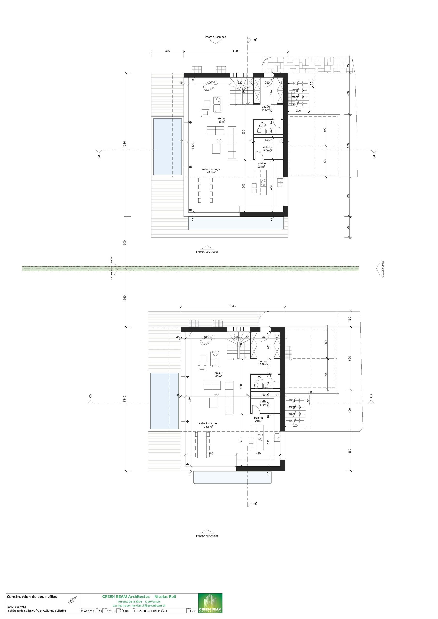
Distribution
Rez-de-chaussée
- Majestueux double salon baigné de lumière, sublimé par de larges baies vitrées s’ouvrant sur la terrasse et le jardin
- Cuisine contemporaine avec îlot central, cellier attenant et salle à manger élégante, équipée d’appareils électroménager haut de gamme type V-ZUG / GAGGENAU pour un confort optimal au quotidien
Étage
- Quatre superbes chambres en suite, chacune offrant intimité, confort et salle de bains privative aux finitions raffinées.
Sous-sol
- Niveau entièrement aménagé et chauffé, conçu comme un espace de détente et de loisirs
- Buanderie équipée
- Espace polyvalent ouvert par de larges baies vitrées sur cour anglaise
- Salle de bain avec WC
- Large pièce de rangement (Cave)
- Local technique
- Cave a vin (option)
- Sauna (option)
Chaque villa dispose de :
- Piscine
- Ascenseur (en option)
- Couvert pour deux voitures (lift en option)
- Construction THPE
- Équipements de très haut standing pour un confort et un niveau d'exigence élevé
Villa B :
- Parcelle : 943 m2
- Surface habitable : 274 m2
- Surface utile en sous-sol : 138 m2
- Terrasse : 34 m2
- Couvert ouvert ou fermé pour 2 véhicules
Prix de vente : 6.680.000 CHF
Vente sur plan
- Financement : UBS
- Entreprise Générale : BOS
Contact pour toutes informations et détails sur le projet
- Serge Hernandez au 079 286 51 74
